Notícias

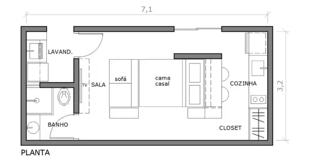
Melhores Projetos/Plantas de Kitnets Gratuitas para Se Inspirar

Se você está planejando construir ou reformar uma kitnet,

Criado em 28/04/2025

Como Declarar a Renda de Aluguel de Kitnets no Imposto de Renda

A renda de aluguel, incluindo a proveniente de kitnets, é um rendimento tributável e deve ......

Criado em 24/03/2025

Aluguel de Kitnets em São Paulo – Opções Econômicas e Práticas

Está procurando um espaço compacto, confortável e bem localizado em São Paulo? ......

Criado em 17/03/2025

Home Office Confortável em Kitnet: 6 Dicas

Criar um home office eficaz ......

Criado em 13/03/2025

Kitnets para Alugar em Belo Horizonte – Conforto e Economia

Oferecemos opções acessíveis, mobiliadas e sem burocracia. Temos kitnets disponíveis a partir ......

Criado em 12/03/2025

Oração Poderosa para Vender ou Alugar um Imóvel Rápido

Vender ou alugar um imóvel pode ser um grande desafio. Muitas vezes, mesmo com um bom an&......

Criado em 11/03/2025

Multipropriedade no Brasil: O Que É, Como Funciona e Questões Polêmicas

A multipropriedade é um modelo de aquisição imobiliária que vem crescendo no Brasil. ......

Criado em 11/02/2025

Alugar Casas ou Kitnets: Qual Gera Mais Retorno?

Investir em imóveis para aluguel é uma excelente forma de gerar renda passiva, mas a escolha ......

Criado em 07/02/2025

Hotéis, Resorts e Albergues: Qual a Melhor Opção para Sua Viagem?

Ao planejar uma viagem, a escolha da hospedagem é um dos fatores mais importantes. Dependendo do perfil do ......

Criado em 30/01/2025

Locais Mais Baratos Para Viajar no Brasil em 2025

Viajar é uma das melhores maneiras de relaxar, conhecer novas culturas e criar memó......

Criado em 21/01/2025

Comparando Plataformas de Locação de Imóveis: Qual é a Melhor Opção?

No mercado de aluguel de imóveis, diversas plataformas oferecem serviços para ......

Criado em 20/01/2025

Vale a Pena Investir em Plataformas de Aluguel para Anunciar Imóveis?

O mercado imobiliário está em constante evolução, e ......

Criado em 16/01/2025

Descubra os Melhores Estados para Viver no Brasil

Escolher o local ideal para morar pode transformar completamente sua qualidade de vida. No Brasil, ......

Criado em 14/01/2025

Dobre sua Renda de Aluguel: Transforme seus Imóveis em Kitnet

Se você tem um imóvel parado ou alugado por um valor baixo, saiba ......

Criado em 14/01/2025

Os 5 Melhores Locais para Visitar em Belo Horizonte

Descubra os 5 Melhores Locais para Visitar em Belo Horizonte, incluindo a cultural ......

Criado em 13/01/2025

Energia Solar em Kitnets e Imóveis de Aluguel, Vale a Pena?

Investir em energia solar em imóveis e kitnets para aluguel é ......

Criado em 13/01/2025

Entenda a Diferença Entre Kitnet e Outros Imóveis

Ao procurar um imóvel, seja para comprar ou alugar, é comum se deparar ......

Criado em 05/12/2024

O Que é uma Kitnet e Quais Seus Benefícios?

A kitnet é um tipo de imóvel compacto e funcional que combina os ......

Criado em 05/12/2024
Buscar blog